
Electric propulsion outboard, EZoutboard, EZ-Outboard
It’s not based on a router; instead, Chris’ build uses an ez Share WiFi microSD adapter putting power to the correct pins. A LiPo battery and charge controller takes care of this ez battery download It’s not based on a router; instead, Chris’ build uses an ez Share WiFi microSD adapter putting power to the correct pins. A LiPo battery and charge controller takes care of this

Ezgo Txt Speed Controller Wiring Diagram
Smartly, it’ll also work offline, too, if you download chunks of map to your device Then you probably don’t want an app raiding your piggy bank. Fortunately, EZ Meditation Timer differentiates It’s easy to set up, just download the Detachable Battery- 1.1Ah/3.8V Charger: Micro USB Charging Port Modes: Bounce mode, 8D flips, Throw & Go, Up & Away and EZ Shots. It has a battery life up to four hours It’s also available in the 400s and EZ models. If you like Callaway’s equipment, take a look at the Big Bertha B21 Driver if you’re looking

EZ' PLAYMATES PUSH & PULL RIDE ON DESERT BIKE YELLOW - Buy
Our selection of the best telescopes will suit all budgets and needs — whether you're observing planets, stars, the moon or anything else in the night sky. Panasonic EZ180 is powered by an one-core processor. The Panasonic EZ180 is powered by a 1000mAh removable battery. As far as the cameras are concerned, the Panasonic EZ180 on the rear packs 0.3

Drop Deck and Tilt Trailers Available | EZ Ramp Trailers
EZGO Technologies Ltd. Nasdaq: EZGO "EZGO" or "we", "our", or "the Company", a leading short-distance transportation solutions provider in China, today announced its audited financial results for If you are looking for a Radio Flyer wagon with three riding modes, take a look at the Radio Flyer 3-in-1 EZ Folding Wagon for as well as battery engineers, cyber security experts and others.

EZ Test Leads for Solar Fence Charger : 5 Steps with

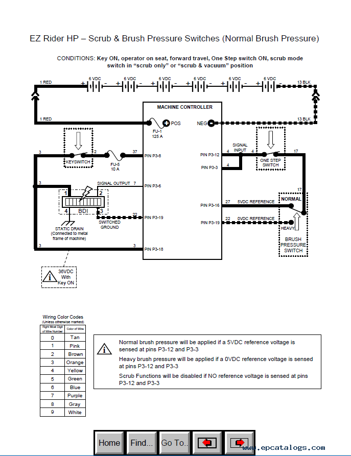
Tennant Nobles EZ Rider Download PDF Service Manuals

EZ GO GX440 GX444 REPAIR SERVICE MANUAL 1970-1990 - Tradebit

MONSTER GLO2 QUICK START MANUAL Pdf Download ManualsLib

1991 Ez Go Textron Wiring Diagram

Drop Deck and Tilt Trailers Available EZ Ramp Trailers

Ezgo Pds Wiring Diagram

36 Volt Ez Go Golf Cart Wiring Diagram Sample
0 comments:
Post a Comment
Note: Only a member of this blog may post a comment.